Appartement d’architecte avec rooftop – Louvre-Rivoli
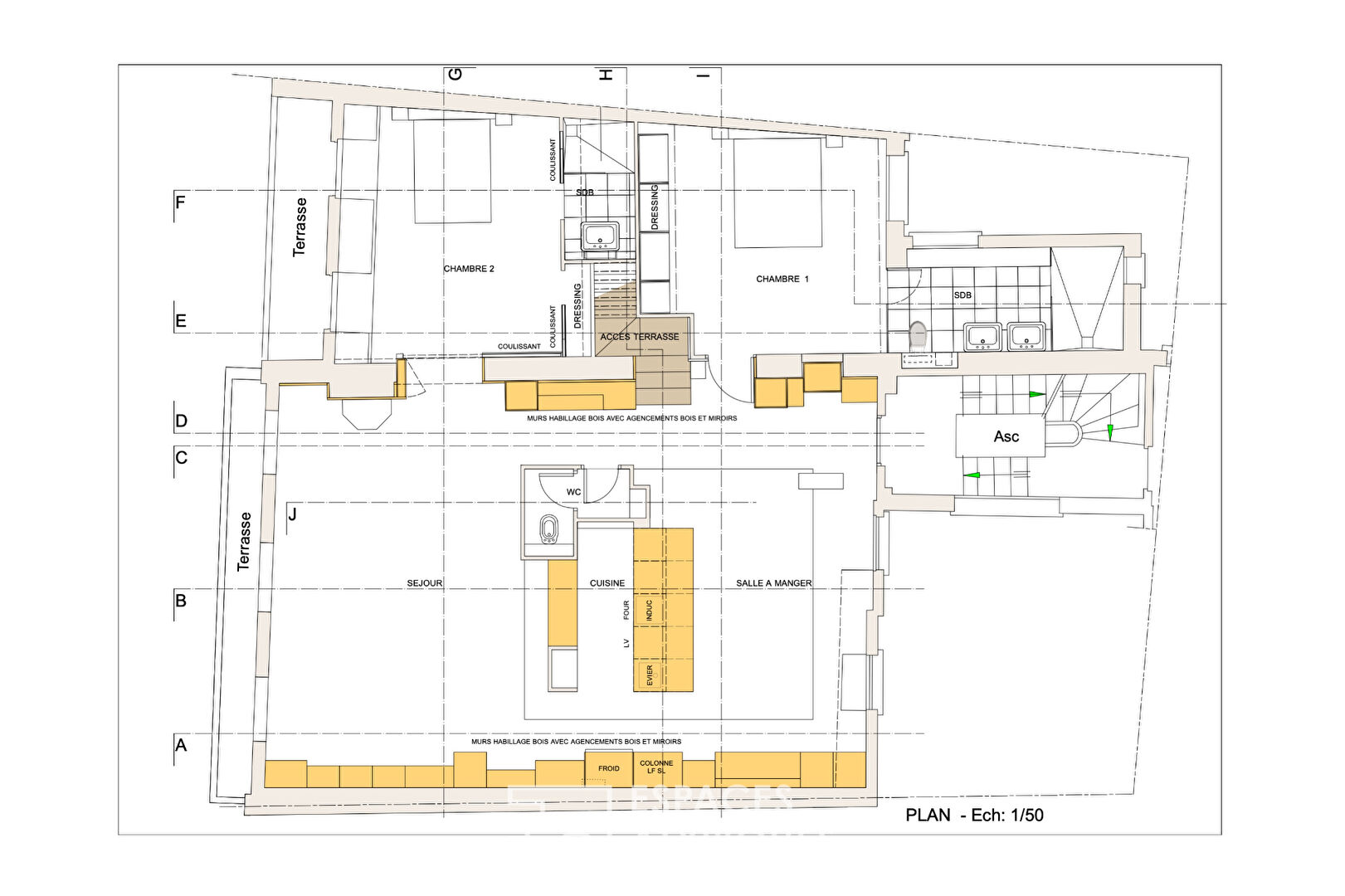
Entre le Musée du Louvre et la Fondation Pinault, à deux pas de la Seine, cet appartement traversant de 133,7 m2 (126,57 m² Carrez) se situe au cinquième étage par ascenseur d’un bel immeuble 1800 entièrement rénové en 2011.
Baigné de lumière, il bénéficie de deux balcons totalisant 10 m2 et d’une terrasse privative de 28 m² sur le toit, offrant un panorama unique sur la tour Eiffel, le dôme des Invalides et l’église Saint-Eustache.
Les volumes généreux dévoilent une vaste pièce de vie traversante réunissant salon, salle à manger et cuisine ouverte, dans une atmosphère résolument contemporaine, chaleureuse et apaisante. Un balcon filant vient prolonger l’espace.
Côté nuit, une première chambre dispose d’un grand dressing intégré et de sa salle de bains avec toilettes et douche à l’italienne.
Une seconde chambre avec salle d’eau attenante et dressing indépendant s’ouvre sur un agréable balcon.
L’appartement, seul à l’étage, offre un calme rare et une isolation phonique et thermique remarquable.
De nombreux rangements sur mesure, des toilettes invités et une cheminée fonctionnelle complètent cet intérieur soigneusement pensé, où le sol en béton ciré et les huisseries de qualité reflètent une élégante rénovation réalisée par architecte.
Véritable atout majeur des lieux, les espaces extérieurs invitent à profiter de vues spectaculaires sur les toits de Paris.
Au coeur d’un quartier vivant et central, proche des commerces, de la vie culturelle et des berges de Seine, ce bien d’exception conjugue situation privilégiée, caractère et atmosphère apaisante.
Bien soumis au régime de copropriété.
Métro Louvre-Rivoli, Pont-Neuf ou Châtelet (Lignes 1, 4 et 7)
Informations complémentaires
- 3 pièces
- 2 chambres
- 1 salle de bain
- 1 salle d'eau
- Étage : 5
- 6 étages dans l'immeuble
- Espaces extérieurs : 38 m2
- 12 lots de copropriété
- Charges annuelles : 4 900 €
- Taxe foncière : 2 498 €
- Procédures en cours : Non
Diagnostics de performance énergétique
- A
- B
- 72kWh/m².an13*kg CO2/m².anC
- D
- E
- F
- G
- A
- B
- 13kg CO2/m².anC
- D
- E
- F
- G
Montant moyen estimé des dépenses annuelles d’énergie pour un usage standard, indexées aux années 2021, 2022, 2023 : entre 973 € et 1317 € (abonnement compris)
Honoraires de l'agence
-
Les honoraires sont TTC à la charge du vendeur
Médiateur
Médiation Franchise-Consommateurs
29 Boulevard de Courcelles 75008 Paris
Les informations sur les risques auxquels ce bien est exposé sont disponibles sur le site Géorisques : www.georisques.gouv.fr
