Ancien studio photo transformé en triplex à Marcadet – Poissonniers
Au pied du métro Marcadet-Poissonniers, à proximité immédiate de Jules Joffrin et de ses commerces, cet ancien studio photo a été entièrement transformé en 2018 en un triplex de 107 m² (105,92 m² Carrez) dans un style industriel affirmé.
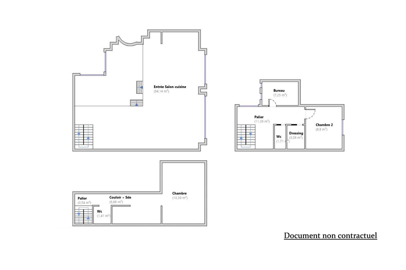
Dès l’entrée, une cuisine équipée aux teintes bleues et à l’îlot central ouvre sur une vaste pièce de vie de 54 m², baignée de lumière grâce à une double façade vitrée. Béton, métal et pierre apparente composent une atmosphère brute et chaleureuse, fidèle à l’esprit du lieu.
Un escalier mène à une partie en souplex, où se trouvent une chambre de 10 m² éclairée par un bandeau vitré, une salle d’eau et des toilettes.
À l’étage, un large palier dessert une chambre/bureau de 7 m² côté cour, un dressing, des toilettes et une chambre de 9 m² donnant sur rue.
Professions libérales autorisées, deuxième entrée à l’étage.
Bien soumis au régime de copropriété.
Métro Marcadet-Poissonniers (ligne 4 et 12)
Informations complémentaires
- 6 pièces
- 3 chambres
- 1 salle d'eau
- 5 étages dans l'immeuble
- 16 lots de copropriété
- Charges annuelles : 3 712 €
- Taxe foncière : 1 498 €
- Procédures en cours : Non
Diagnostics de performance énergétique
- A
- B
- C
- D
- E
- F
- G
- A
- B
- C
- 44kg CO2/m².anD
- E
- F
- G
Montant moyen estimé des dépenses annuelles d’énergie pour un usage standard, indexées aux années 2021, 2022, 2023 : entre 1970 € et 2710 € (abonnement compris)
Honoraires de l'agence
-
Les honoraires sont TTC à la charge du vendeur
Médiateur
Médiation Franchise-Consommateurs
29 Boulevard de Courcelles 75008 Paris
Les informations sur les risques auxquels ce bien est exposé sont disponibles sur le site Géorisques : www.georisques.gouv.fr
