Former garden painter’s workshop
Close to the Michel Bizot metro station and the Bois de Vincennes, in a quiet area, this former 53.59m2 Carrez painter’s workshop, set back at the bottom of a garden, has been renovated.
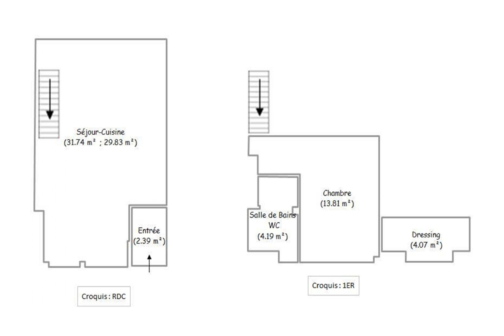
The entrance opens onto a living room with an open kitchen of exceptional volume with more than 5 meters of ceiling height. It is bathed in light with its multiple windows on the facade.
A few steps up, on a mezzanine which overlooks this space, is the sleeping area composed of a bedroom with its bathroom with toilet supplemented by a closed dressing room.
The property benefits from very strong redevelopment potential to offer a unique place to live or work.
Possibility of parking in addition to the price.
Bicycle storage.
Although subject to the status of the co-ownership, guardian.
Metro: Michel Bizot or Porte Dorée
Additional information
- 2 rooms
- 1 Bedroom
- 1 bathroom
- 3 floors in the building
- 127 co-ownership lots
- Annual co-ownership fees : 3 213 €
- Property tax : 1 255 €
- Proceeding : Non
Energy Performance Certificate
- A
- B
- C
- D
- 276kWh/m².year60*kg CO2/m².yearE
- F
- G
- A
- B
- C
- D
- 60kg CO2/m².yearE
- F
- G
Estimated average annual energy costs for standard use, indexed to specific years 2021, 2022, 2023 : between 1180 € and 1640 € Subscription Included
Agency fees
-
The fees include VAT and are payable by the vendor
Mediator
Médiation Franchise-Consommateurs
29 Boulevard de Courcelles 75008 Paris
Simulez votre financement
Information on the risks to which this property is exposed is available on the Geohazards website : www.georisques.gouv.fr
