Opportunité à saisir – Terrain constructible avec permis purgé
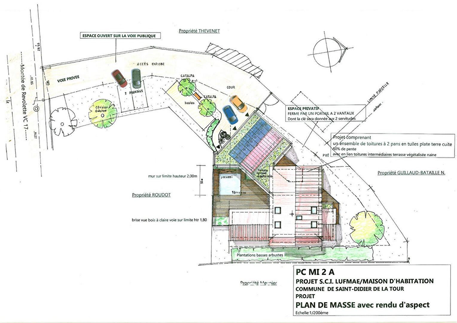
Situé sur les hauteurs de la commune de Saint Didier de La Tour, au dessus du lac St Felix, à 5 minutes de l’autoroute A43 et dans un quartier résidentiel, ce terrain plat de 1 220 m² avec permis de construire purgé, permet d’ériger une belle villa contemporaine d’architecte à ossature bois.
Toutes les formalités administratives sont réalisées.
Les travaux peuvent démarrer dans un délai de 1 mois pour une remise des clefs fin 2026.
Des devis concernant le coût de la construction peuvent être fournis à titre indicatif .
Le délai des travaux est estimé à 10 mois
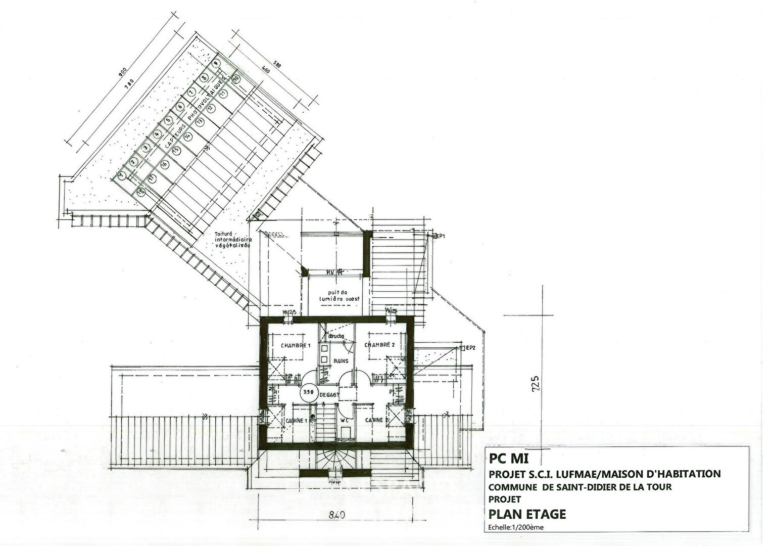
La future maison, à rez-de-chaussée et un étage, d’une surface totale de planchers de 187 m² avec 47 m² d’annexes, dont un garage pour 2 véhicules, dispose d’une grande pièce de vie à double exposition ouverte sur une loggia et deux terrasses dont une avec jacuzzi, d’une cuisine ouverte, d’un bureau, d’une suite parentale avec dressing et salle de bains et d’un WC. Des celliers, des rangements et un accès direct au garage complètent le niveau bas.
L’étage quant à lui offre deux chambres avec dressing, un WC et une salle d’eau.
La distribution intérieure de la maison peut être modifiée sans remettre en cause le permis de construire .
Cette maison d’architecte est conçue dans un objectif d’optimisation énergétique et de bien être (panneaux solaires, double exposition, toiture végétalisée… )
Le prix intègre le cout du permis de construire accepté et purgé de tout recours.
Visuels non contractuels.
L’accès à la parcelle est totalement indépendant.
Centre bourg et toutes commodités à 500 m
Accès autoroute A43 à 5 mn
Aéroport Saint Exupéry et TGV à 35 kms
Gare SNCF de Saint André le Gaz à 3.5 kms
Informations complémentaires
- Surface du terrain : 1220 m2
Diagnostics de performance énergétique
Honoraires de l'agence
-
Les honoraires sont TTC à la charge du vendeur
Médiateur
Médiation Franchise-Consommateurs
29 Boulevard de Courcelles 75008 Paris
Simulez votre financement
Les informations sur les risques auxquels ce bien est exposé sont disponibles sur le site Géorisques : www.georisques.gouv.fr
