Appartement traversant au coeur de la capitale
Cet appartement traversant de 78,11 m2 Carrez se trouve au 3e étage par ascenseur d’un bel immeuble bien entretenu, proche des quais de Seine, de l’Hôtel de Ville et du quartier des Halles.
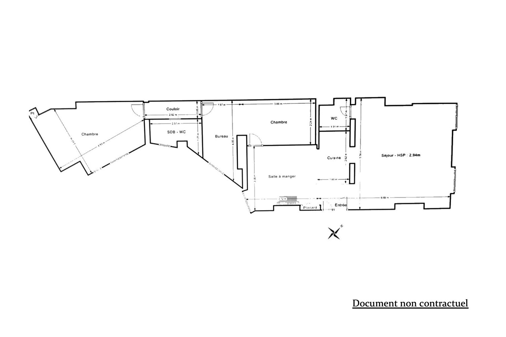
L’entrée dessert un beau séjour lumineux de 25 m2 sublimé par ses 3 mètres de hauteur sous plafond et ses deux grandes fenêtres offrant une vue dégagée.
Dans le prolongement prennent place une cuisine ouverte équipée et une salle à manger de 17 m2.
L’ensemble confère à ce lieu une atmosphère spacieuse et conviviale profitant d’une belle luminosité.
Côté nuit, deux pièces de 14 m2 chacune et une salle de bains donnent sur cour, offrant calme et tranquillité.
La cour de cet ancien hôtel particulier du 19ème siècle classé au monuments historiques, apporte du cachet aux lieux.
Une cave complète ce bien soumis au régime de copropriété.
Métro Châtelet (Lignes 1, 4, 7, 11 et 14)
Informations complémentaires
- 3 pièces
- 2 chambres
- 1 salle de bain
- Étage : 3
- 6 étages dans l'immeuble
- 19 lots de copropriété
- Charges annuelles : 3 304 €
- Taxe foncière : 1 173 €
- Procédures en cours : Non
Diagnostics de performance énergétique
- A
- B
- C
- D
- 327kWh/m².an13*kg CO2/m².anE
- F
- G
- A
- B
- 13kg CO2/m².anC
- D
- E
- F
- G
Montant moyen estimé des dépenses annuelles d’énergie pour un usage standard, indexées aux années 2021, 2022, 2023 : entre 2390 € et 3270 € (abonnement compris)
Honoraires de l'agence
-
Les honoraires sont TTC à la charge du vendeur
Médiateur
Médiation Franchise-Consommateurs
29 Boulevard de Courcelles 75008 Paris
Simulez votre financement
Les informations sur les risques auxquels ce bien est exposé sont disponibles sur le site Géorisques : www.georisques.gouv.fr
