Duplex d’angle en dernier étage – Sentier
Entre Montorgueil et les Grands Boulevards, ce duplex rénové par architecte de 96,50 m² (77,58 m² Carrez) se situe au cinquième et dernier étage sans ascenseur d’un petit immeuble bien entretenu.
Un lieu à la fois lumineux et calme dans un esprit maison.
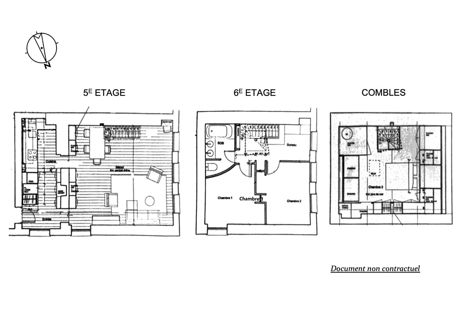
Dès l’entrée, les volumes se dévoilent avec fluidité. Une grande cuisine élégante et fonctionnelle, semi-ouverte, s’intègre parfaitement à l’espace.
Elle s’ouvre sur un vaste séjour d’angle de 34 m² à l’atmosphère chaleureuse et apaisante, baigné de lumière notamment grâce à sa double exposition.
Au premier étage, une chambre de 19 m², lumineuse et calme, offre un bel espace (Possibilité de créer 2 chambres à ce niveau). Un espace bureau ainsi qu’une salle d’eau complètent ce niveau, dans un esprit à la fois pratique et raffiné.
Au dernier niveau, sous les combles, une pièce supplémentaire peut accueillir une chambre, un bureau ou une salle de jeux, selon les envies. Un espace intimiste, à l’écart, propice au calme.
L’adresse bénéficie d’un environnement recherché, mêlant dynamisme, gastronomie et vie culturelle. Un quartier vivant et inspirant, où l’énergie parisienne se conjugue à une vraie qualité de vie.
Une cave complète ce bien soumis au régime de copropriété.
Métro Grands Boulevards, Bourse ou Sentier (lignes 3, 8 et 9)
Informations complémentaires
- 4 pièces
- 2 chambres
- 1 salle d'eau
- Étage : 5
- 5 étages dans l'immeuble
- 17 lots de copropriété
- Charges annuelles : 2 304 €
- Taxe foncière : 1 803 €
- Procédures en cours : Non
Diagnostics de performance énergétique
- A
- B
- C
- D
- 268kWh/m².an10*kg CO2/m².anE
- F
- G
- A
- 10kg CO2/m².anB
- C
- D
- E
- F
- G
Montant moyen estimé des dépenses annuelles d’énergie pour un usage standard, indexées aux années 2021, 2022, 2023 : entre 1920 € et 2640 € (abonnement compris)
Honoraires de l'agence
-
Les honoraires sont TTC à la charge du vendeur
Médiateur
Médiation Franchise-Consommateurs
29 Boulevard de Courcelles 75008 Paris
Simulez votre financement
Les informations sur les risques auxquels ce bien est exposé sont disponibles sur le site Géorisques : www.georisques.gouv.fr
