Appartement traversant en étage élevé avec ascenseur et balcon
Rue Camille Crespin du Gast, à proximité immédiate de Ménilmontant et du Père-Lachaise, cet appartement sur rue et cour de 33,77 m² Carrez est situé au 5ème étage avec ascenseur d’un immeuble de 1880.
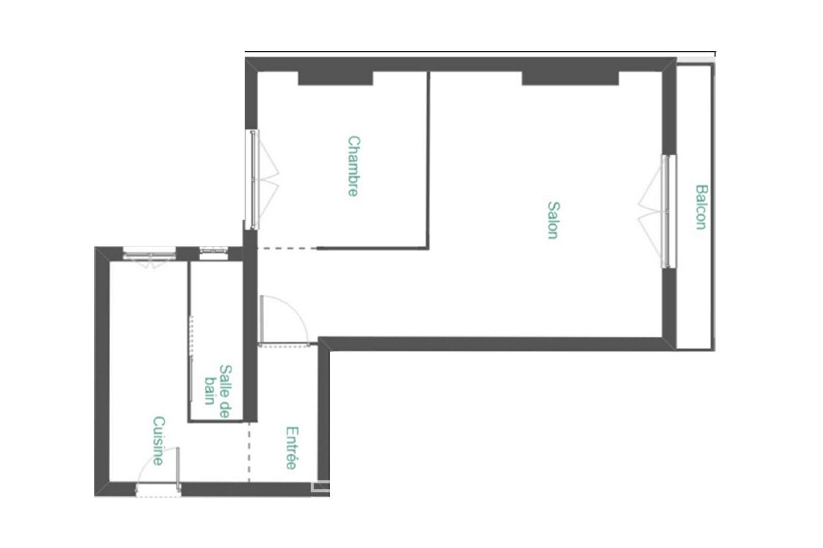
Une entrée dessert un salon de 16 m² prolongé par un balcon orienté Sud-Ouest.
Une verrière permet de créer une chambre séparée en laissant traverser la lumière de la pièce de vie.
L’appartement est prolongé par une cuisine indépendante et une salle d’eau avec un wc.
Au calme d’une rue peu passante ce bien se situe dans un environnement proche de tous les commerces. Il bénéficie d’une vue dégagée et d’une lumière constante.
Une cave complète cet appartement soumis au statut de la copropriété disposant d’un local vélos.
Métros : Rue Saint-Maur, Ménilmontant, Père-Lachaise
Informations complémentaires
- 2 pièces
- 1 chambre
- 1 salle d'eau
- Étage : 5
- 6 étages dans l'immeuble
- 75 lots de copropriété
- Charges annuelles : 1 715 €
- Taxe foncière : 694 €
- Procédures en cours : Non
Diagnostics de performance énergétique
- A
- B
- C
- D
- 329kWh/m².an13*kg CO2/m².anE
- F
- G
- A
- B
- 13kg CO2/m².anC
- D
- E
- F
- G
Montant moyen estimé des dépenses annuelles d’énergie pour un usage standard, indexées aux années 2021, 2022, 2023 : entre 1070 € et 1480 € (abonnement compris)
Honoraires de l'agence
-
Les honoraires sont TTC à la charge du vendeur
Médiateur
Médiation Franchise-Consommateurs
29 Boulevard de Courcelles 75008 Paris
Simulez votre financement
Les informations sur les risques auxquels ce bien est exposé sont disponibles sur le site Géorisques : www.georisques.gouv.fr
