Loft à l’esprit industriel dans une ancienne manufacture des années 1930
Niché au cœur d’une impasse confidentielle du 11ème arrondissement, à mi-chemin entre le cimetière du Père Lachaise et la place Voltaire, ce lieu de vie singulier s’inscrit dans l’histoire d’une ancienne manufacture des années 30.
Situé au premier étage accessible par ascenseur, cet appartement à l’esprit loft a bénéficié d’une rénovation intégrale en 2020.
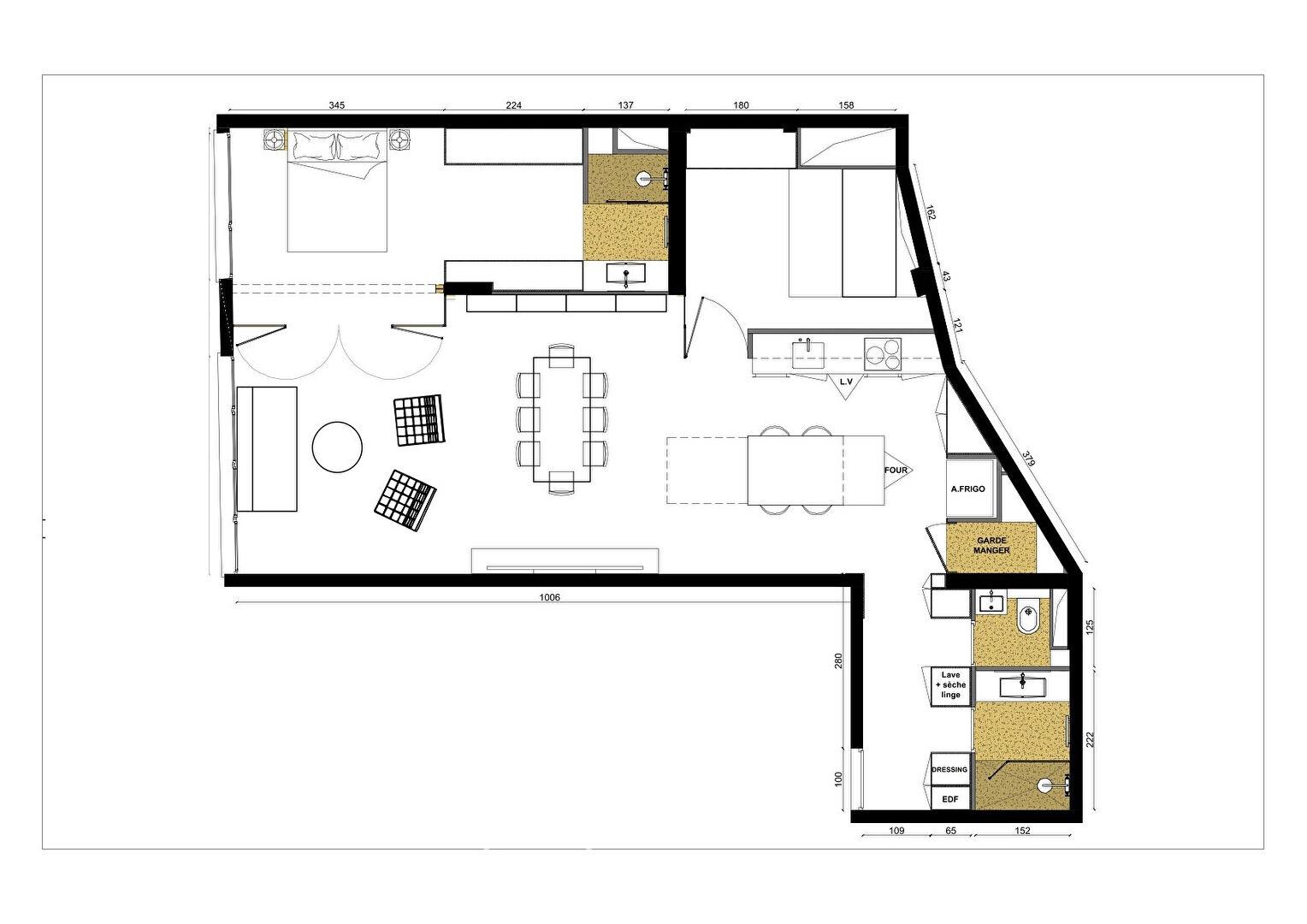
La pièce de vie magistrale de 47 m², véritable cœur battant de l’appartement, s’habille d’un parquet massif chaleureux qui dialogue avec d’élégantes huisseries en acier.
La cuisine sur mesure, aux lignes épurées et entièrement équipée, s’intègre avec fluidité dans cet espace de vie généreux, idéal pour recevoir.
Côté nuit, la suite parentale dispose d’un dressing dédié et d’une salle d’eau privative. Une deuxième chambre en second jour profite de la lumière traversante grâce à d’astucieux jeux de transparence.
Une seconde salle d’eau indépendante et des WC séparés complètent ce bien. Une cave est également à votre disposition.
Bien soumis au statut de la copropriété.
Métros : Philippe Auguste / Charonne
Informations complémentaires
- 3 pièces
- 2 chambres
- 2 salles d'eau
- Étage : 1
- 3 étages dans l'immeuble
- 40 lots de copropriété
- Charges annuelles : 2 866 €
- Taxe foncière : 1 674 €
- Procédures en cours : Non
Diagnostics de performance énergétique
- A
- B
- 145kWh/m².an5*kg CO2/m².anC
- D
- E
- F
- G
- 5kg CO2/m².anA
- B
- C
- D
- E
- F
- G
Montant moyen estimé des dépenses annuelles d’énergie pour un usage standard, indexées aux années 2021, 2022, 2023 : entre 980 € et 1370 € (abonnement compris)
Honoraires de l'agence
-
Les honoraires sont TTC à la charge du vendeur
Médiateur
Médiation Franchise-Consommateurs
29 Boulevard de Courcelles 75008 Paris
Simulez votre financement
Les informations sur les risques auxquels ce bien est exposé sont disponibles sur le site Géorisques : www.georisques.gouv.fr
