Loft dans un ancienne boutique-atelier du XIXème siècle
Au coeur de la rue Saint-Sébastien, entre les vibrations du Marais et l’esprit village d’Oberkampf, cette ancienne boutique-atelier de 118 ,04 m² Carrez déploie un volume rare, baigné d’une lumière douce filtrée par une vitrine confidentielle et une verrière type atelier et sublimé par une hauteur sous plafond de 3 mètres.
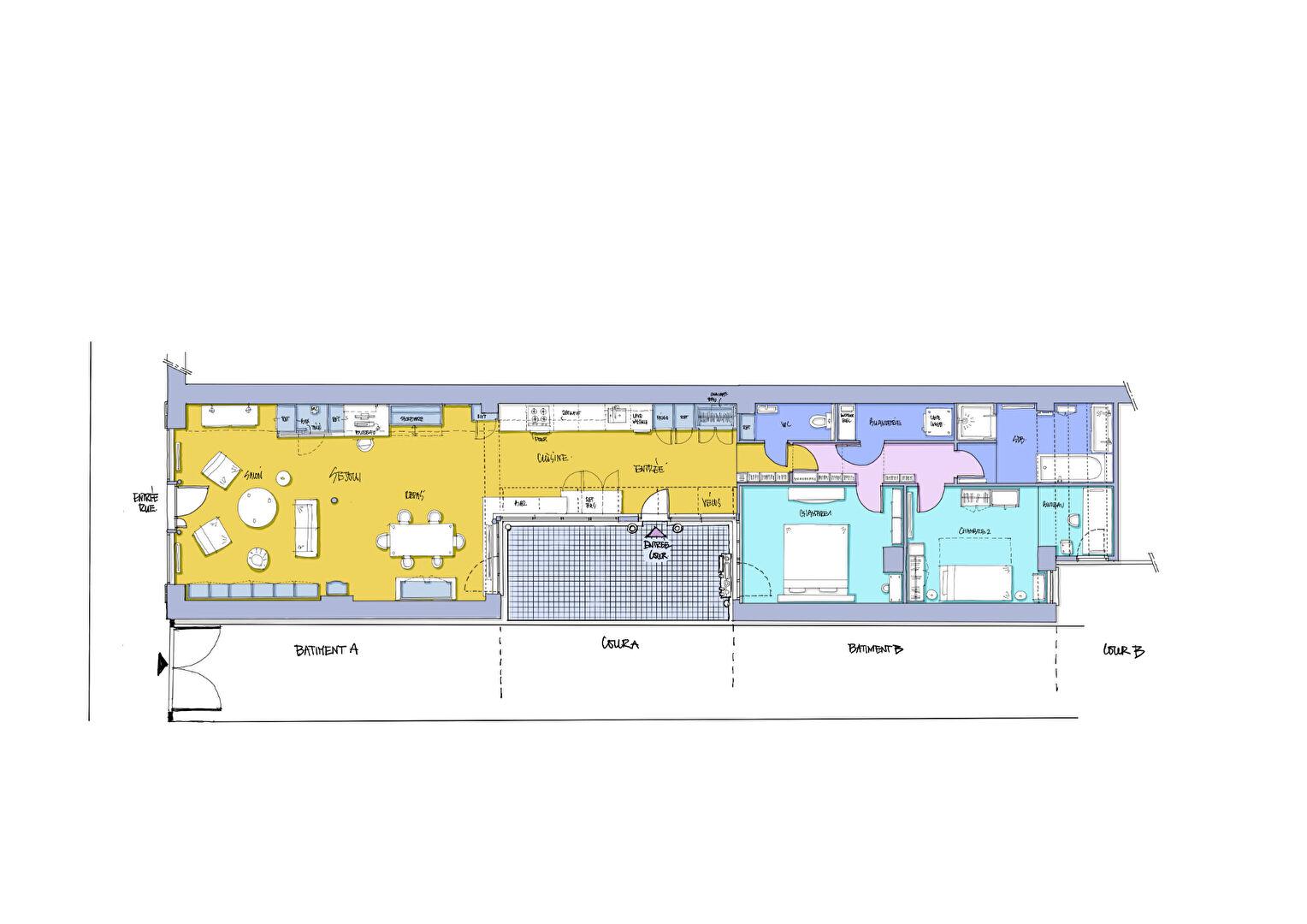
Dès l’entrée, la pièce de vie impressionne par ses proportions et son élégante linéarité. Sur près de 66 m², salon et cuisine dialoguent dans un esprit loft assumé, entre mobilier vintage chiné, pièces de design et touches artistiques qui rythment l’espace.
La cuisine, installée sous une verrière zénithale, profite d’une lumière naturelle précieuse qui accentue le caractère atelier du lieu. L’ensemble, ouvert mais structuré, offre un cadre de vie à la fois chaleureux et inspirant.
À l’arrière, accessible par une porte qui marque une véritable transition, un dégagement distribue l’espace nuit, volontairement dissocié de la vie quotidienne. Deux chambres de 15m² et 13m² s’y déploient dans une atmosphère plus feutrée, dont l’une accueille un charmant recoin aménagé en bureau atelier créatif.
La salle de bains et douche, spacieuse, ainsi que cette seconde chambre bénéficient également d’une verrière zénithale, apportant une lumière naturelle inattendue et équilibrant harmonieusement les volumes. Un WC indépendant complète cet ensemble. Un cellier aménagé en atelier et buanderie vient parfaire la fonctionnalité du lieu.
La cour pavée, agrémentée de plantes disposées avec soin, prolonge l’esprit atelier et offre un cadre paisible et arboré.
Un bien singulier, à la fois vivant et confidentiel où les volumes, la circulation fluide et la séparation des espaces permettent de conjuguer vie sociale et intimité sans compromis. Idéal pour les amateurs de lieux atypiques, les esprits créatifs ou ceux qui cherchent un refuge inspirant à quelques pas du quartier des archives.
De nombreux emplacements pour vélos sont disponibles dans la cour.
Une cave complète ce bien soumis au statut de la copropriété.
Métro : Saint Sébastien Froissart (ligne 8)
Informations complémentaires
- 3 pièces
- 2 chambres
- 1 salle de bain
- 1 salle d'eau
- 36 lots de copropriété
- Charges annuelles : 2 693 €
- Taxe foncière : 2 024 €
- Procédures en cours : Non
Diagnostics de performance énergétique
- A
- B
- C
- D
- 319kWh/m².an68*kg CO2/m².anE
- F
- G
- A
- B
- C
- D
- 68kg CO2/m².anE
- F
- G
Montant moyen estimé des dépenses annuelles d’énergie pour un usage standard, indexées aux années 2021, 2022, 2023 : entre 3330 € et 4520 € (abonnement compris)
Honoraires de l'agence
-
Les honoraires sont TTC à la charge du vendeur
Médiateur
Médiation Franchise-Consommateurs
29 Boulevard de Courcelles 75008 Paris
Simulez votre financement
Les informations sur les risques auxquels ce bien est exposé sont disponibles sur le site Géorisques : www.georisques.gouv.fr
