Étage noble de réception avec extérieurs – Parc Monceau
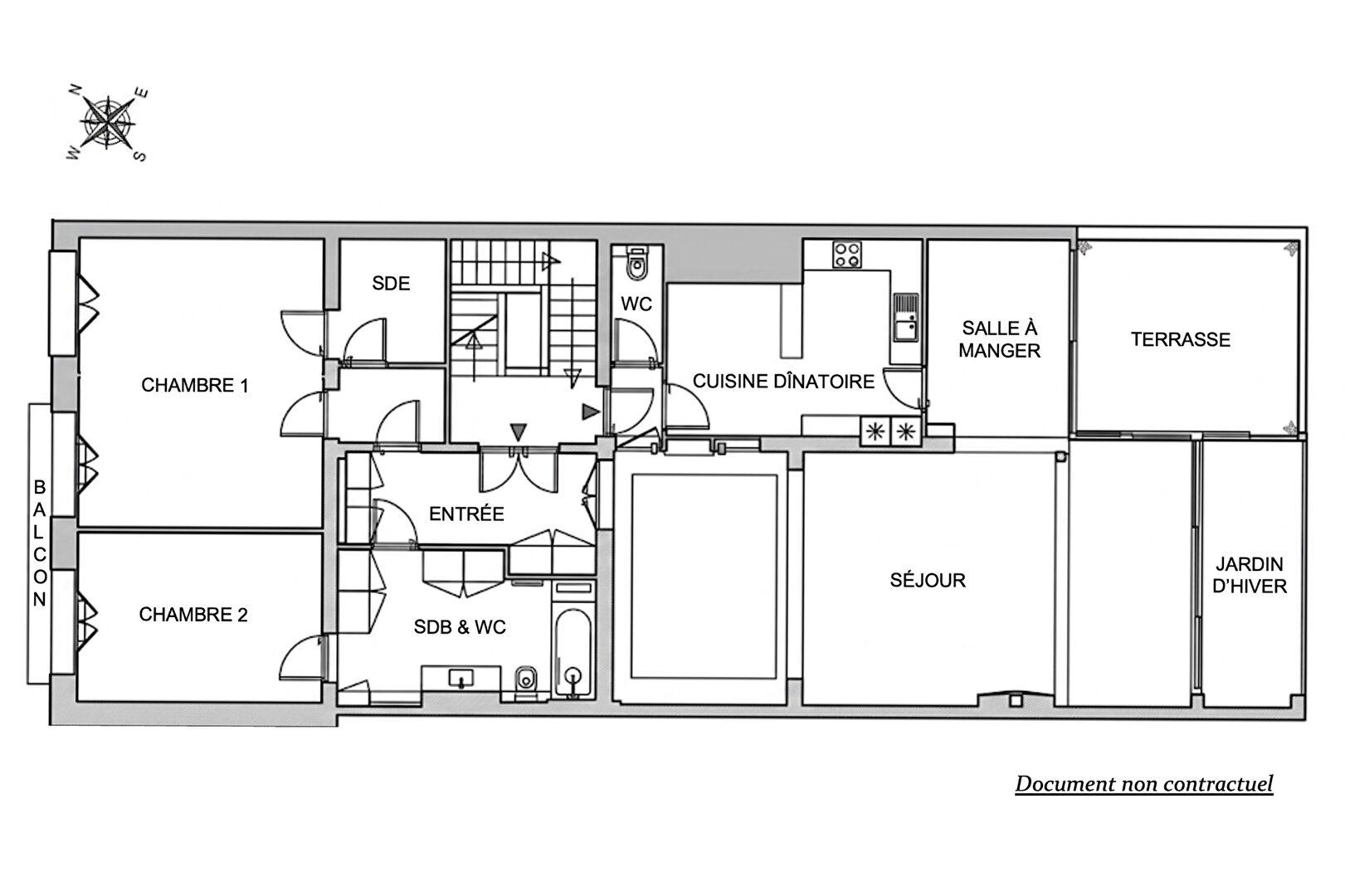
Situé à toute proximité du parc Monceau, cet appartement de 174,65 m² (173,56 m² loi Carrez), prolongé par 18 m² d’espaces extérieurs, occupe seul le second étage d’un ancien hôtel particulier.
L’accès s’effectue par un majestueux escalier d’honneur menant à un palier privatif.
Dès l’entrée, l’architecture intérieure révèle une enfilade de réceptions élégantes, sublimée par une verrière zénithale, véritable signature du lieu.
Le grand salon, agrémenté d’une cheminée d’époque, dessiné et conçu par un compagnon du devoir, se prolonge par un jardin d’hiver, transition poétique vers une terrasse végétalisée de 15 m².
Cette terrasse de plain-pied constitue un luxe rare, offrant une parenthèse de verdure, au calme remarquable.
Le plan, parfaitement maîtrisé, distingue harmonieusement les espaces de réception de la partie dînatoire.
La cuisine, spacieuse et conviviale, accueille un généreux coin repas et intègre un accès de service.
La partie nuit, climatisée, et complétée par un balcon de 3 m², se compose actuellement de deux suites généreuses, chacune dotée de rangements sur mesure et d’une salle de bains ou douche.
Si nécessaire, la configuration permet aisément de réintégrer une troisième chambre, sans altérer l’équilibre des volumes.
Une cave complète ce bien soumis au régime de copropriété.
Possibilité d’acquérir, en sus du prix, un emplacement de parking privé situé dans la même rue.
Métro Monceau (Ligne 2)
Informations complémentaires
- 4 pièces
- 2 chambres
- 1 salle de bain
- 1 salle d'eau
- Étage : 2
- 3 étages dans l'immeuble
- Stationnement : 1 place
- 7 lots de copropriété
- Charges annuelles : 1 500 €
- Taxe foncière : 3 343 €
- Procédures en cours : Non
Diagnostics de performance énergétique
- A
- B
- C
- 210kWh/m².an40*kg CO2/m².anD
- E
- F
- G
- A
- B
- C
- 40kg CO2/m².anD
- E
- F
- G
Montant moyen estimé des dépenses annuelles d’énergie pour un usage standard, indexées aux années 2021, 2022, 2023 : entre 3240 € et 4450 € (abonnement compris)
Honoraires de l'agence
-
Les honoraires sont TTC à la charge du vendeur
Médiateur
Médiation Franchise-Consommateurs
29 Boulevard de Courcelles 75008 Paris
Simulez votre financement
Les informations sur les risques auxquels ce bien est exposé sont disponibles sur le site Géorisques : www.georisques.gouv.fr
