Appartement sur cour à optimiser aux Abbesses
Au coeur de Montmartre, à deux pas des Abbesses tout en étant parfaitement au calme, cet appartement en rez-de-chaussée donnant sur cour se déploie sur 29,80 m² (22,85 m² Carrez + 6,95 m² de remise à intégrer).
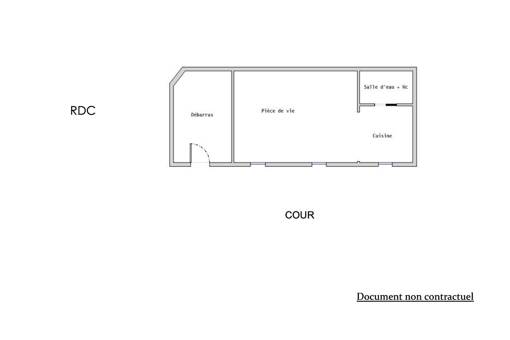
Il est composé d’un espace de vie avec coin salon et couchage en mezzanine suivi d’une cuisine et d’une salle d’eau avec toilettes.
Dans sa configuration actuelle, l’appartement bénéficie de deux portes-fenêtres de plain-pied sur la cour et d’une fenêtre classique côté cuisine.
Une extension en intégrant la remise permettra d’agrandir encore la pièce de vie ou de créer une chambre à part entière selon votre projet.
Bien soumis au statut de copropriété.
Métro Abbesses (Ligne 12)
Informations complémentaires
- 2 pièces
- 1 chambre
- 1 salle d'eau
- 1 étage dans l'immeuble
- 12 lots de copropriété
- Charges annuelles : 1 400 €
- Taxe foncière : 532 €
- Procédures en cours : Non
Diagnostics de performance énergétique
- A
- B
- C
- D
- E
- F
- 505kWh/m².an20*kg CO2/m².anG
- A
- B
- 20kg CO2/m².anC
- D
- E
- F
- G
Montant moyen estimé des dépenses annuelles d’énergie pour un usage standard, indexées aux années 2021, 2022, 2023 : entre 1100 € et 1540 € (abonnement compris)
Honoraires de l'agence
-
Les honoraires sont TTC à la charge du vendeur
Médiateur
Médiation Franchise-Consommateurs
29 Boulevard de Courcelles 75008 Paris
Simulez votre financement
Les informations sur les risques auxquels ce bien est exposé sont disponibles sur le site Géorisques : www.georisques.gouv.fr
