Combles à finir d’aménager en coeur de ville
Situé sous les combles d’un bel immeuble en plein centre-ville de Dieppe, cet appartement bénéficie d’un emplacement exceptionnel, alliant vie urbaine et littoral : marché, commerces, écoles, gare et Flixbus à moins de 300 mètres, et plage accessible en 2 minutes à pied.
Un emplacement stratégique, idéal pour les actifs comme les investisseurs, porté par le dynamisme économique à venir autour de la centrale de Penly.
Issu de la réhabilitation complète d’un ancien central téléphonique, ce bâtiment chargé d’histoire fut autrefois un édifice de la Marine Royale. Il conserve une remarquable charpente marine apparente, véritable signature architecturale.
La façade en chaux et brique blanche typique de Dieppe ainsi que la toiture neuve en ardoise ont été restaurées dans le respect des prescriptions des Bâtiments de France. L’immeuble dispose également d’un ascenseur et d’une impressionnante cage d’escalier.
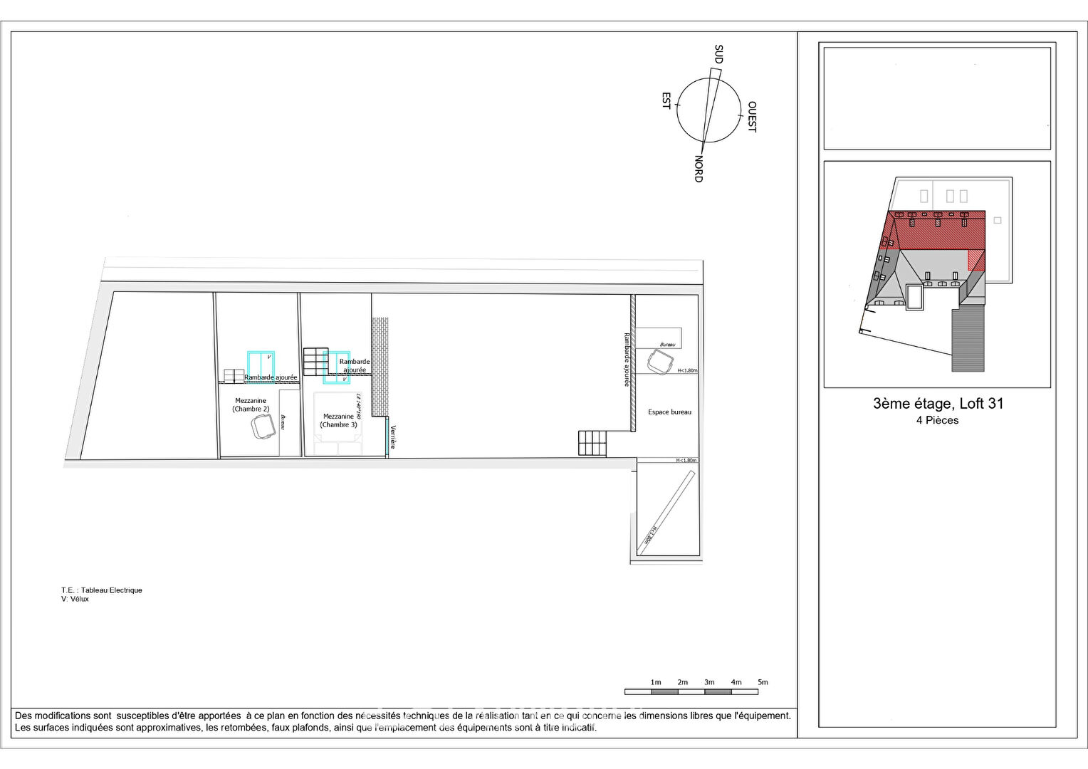
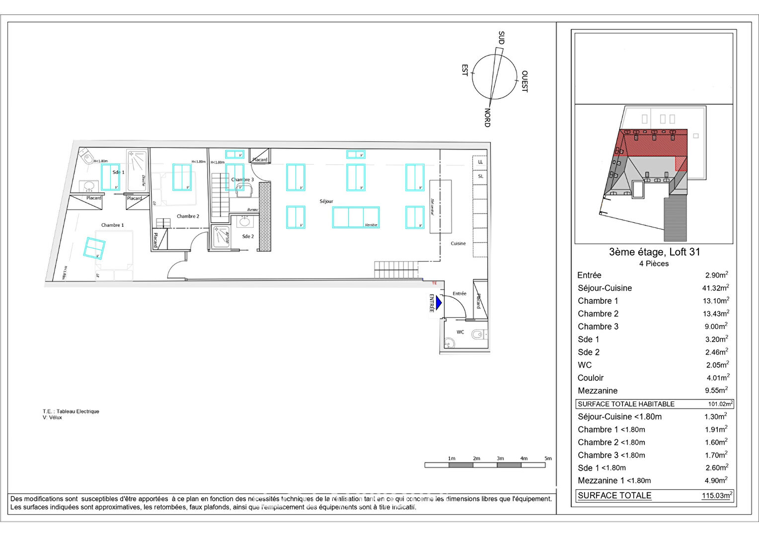
Cet appartement de style loft développe environ 101 m² habitables. Il est proposé en plateau brut à aménager, offrant une grande liberté de conception.
La configuration suggérée prévoit :
-une entrée,
-un séjour avec cuisine de 41,32 m²,
-trois chambres, dont deux en duplex,
-deux salles de douche,
-un WC indépendant.
La projection 3D est non contractuelle et réalisée à l’aide de l’IA. Elle a pour seul objectif de vous aider à vous projeter dans la pièce de vie.
L’acquéreur conserve une liberté totale dans le choix des entreprises, sous réserve du respect des exigences techniques et des normes réglementaires en vigueur.
Il est également possible de confier l’aménagement à l’entreprise ayant déjà oeuvré sur le projet, dont les réalisations sur les autres appartements témoignent de la qualité du travail.
Local vélos/poussettes en rez-de-chaussée.
Parking possible en supplément (selon disponibilités).
Un bien rare, à façonner selon vos envies, mêlant patrimoine, volumes et modernité, au coeur de Dieppe.
DPE : NON SOUSMIS AU DPE
Copropriété : 25 lots dont 11 d’habitation
Charges annuelles : à définir
Procédure en cours : non
Les informations sur les risques auxquels ce bien est exposé sont disponibles sur le site Géorisques : www.georisques.gouv.fr
Informations complémentaires
- 4 pièces
- 3 chambres
- 2 salles d'eau
- 25 lots de copropriété
- Procédures en cours : Non
Diagnostics de performance énergétique
Honoraires de l'agence
-
Les honoraires sont TTC à la charge du vendeur
Médiateur
Médiation Franchise-Consommateurs
29 Boulevard de Courcelles 75008 Paris
Simulez votre financement
Les informations sur les risques auxquels ce bien est exposé sont disponibles sur le site Géorisques : www.georisques.gouv.fr
