Appartement d’exception au coeur d’Abbeville
Au cœur d’Abbeville et à 20 minutes de la Baie de Somme, à deux pas du centre-ville, cet appartement d’exception, situé au dernier étage d’un bâtiment du XVIIIe siècle, s’étend sur 270 m². Offrant une vue dégagée et une exposition sud-ouest, ce bien allie parfaitement charme de l’ancien et confort moderne.
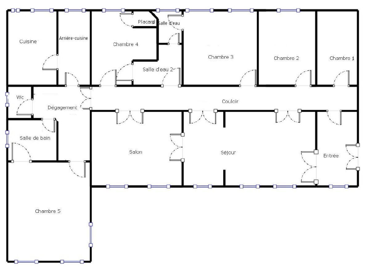
Avec 8 pièces dont 6 chambres, 3 salles de bains, et un grenier de plus de 200 m² à aménager selon les envies, cet espace de vie rare est une invitation à la créativité. Trois places de parking viennent compléter ce bien d’exception.
L’intérieur se distingue par des volumes généreux et une rénovation totale qui respecte l’authenticité de l’architecture ancienne, tout en intégrant des éléments modernes. Le parquet ancien et les moulures qui ornent chaque pièce apportent un cachet indéniable. Les espaces de vie sont lumineux, grâce à de larges fenêtres offrant une vue dégagée. La cuisine indépendante aménagée et équipée dans le prolongement de la salle à manger crée un environnement convivial. Les six chambres permettent à chaque membre de la famille de bénéficier d’un espace privé et confortable. Deux chambres bénéficient chacune d’un accès privatif à une salle d’eau avec toilettes, garantissant un confort optimal.
Une troisième chambre dispose de son propre point d’eau.
Au bout du couloir, un vaste palier mène à la chambre parentale de 30m². Elle s’accompagne d’un dressing sur mesure, d’une salle de bains privative et spacieuse, et de toilettes indépendantes.
Un espace buanderie et une seconde cuisine complètent le tout.
L’exceptionnel grenier de plus de 200 m² offre un potentiel considérable pour aménager un salon de jeux, un atelier d’artiste, des chambres supplémentaires ou tout autre projet d’envergure. Ce volume unique, situé sous les toits, constitue un véritable atout pour ceux en quête d’un bien avec une dimension supplémentaire.
Ce bien sécurisé avec portail offre un parking privé pour trois voitures et un accès aisé à toutes les commodités locales à quelques pas : boulangeries, cafés, boutiques, pharmacies, ainsi qu’un bureau de poste, une papeterie et un supermarché Carrefour. La salle de sport se trouve à seulement 5 minutes en voiture.
Ce bien se distingue par son caractère atypique et son potentiel d’aménagement, un lieu idéal pour ceux recherchant à la fois un cadre de vie de prestige et une propriété historique.
À 5 minutes à pied de la gare, avec liaisons directes vers Paris (1h30) et Amiens (30 min)
À 25 minutes des stations balnéaires de Saint-Valery-sur-Somme et du Crotoy (plages, nouveau centre de tennis et de padel)
À 1h10 de Calais, idéal pour les week-ends ou les trajets Eurotunnel/ferry et à 40 minutes du Touquet.
Montant réel de chauffage sur factures : 300 euros par mois.
Informations complémentaires
- 8 pièces
- 6 chambres
- 3 salles de bain
- Étage : 2
- 2 étages dans l'immeuble
- Stationnement : 2 places
- 6 lots de copropriété
- Charges annuelles : 500 €
- Taxe foncière : 4 900 €
- Procédures en cours : Non
Diagnostics de performance énergétique
- A
- B
- C
- D
- E
- 368kWh/m².an81*kg CO2/m².anF
- G
- A
- B
- C
- D
- E
- 81kg CO2/m².anF
- G
Honoraires de l'agence
-
Les honoraires sont TTC à la charge du vendeur
Médiateur
Médiation Franchise-Consommateurs
29 Boulevard de Courcelles 75008 Paris
Simulez votre financement
Les informations sur les risques auxquels ce bien est exposé sont disponibles sur le site Géorisques : www.georisques.gouv.fr
