Maison d’architecte des années 70
Située à Saint-Michel-sur-Orge, au coeur d’un quartier résidentiel recherché pour sa proximité avec les écoles et les commodités, cette maison de plain-pied au style moderniste des années 70 déploie 140 m² habitables sur un terrain arboré de 480 m².
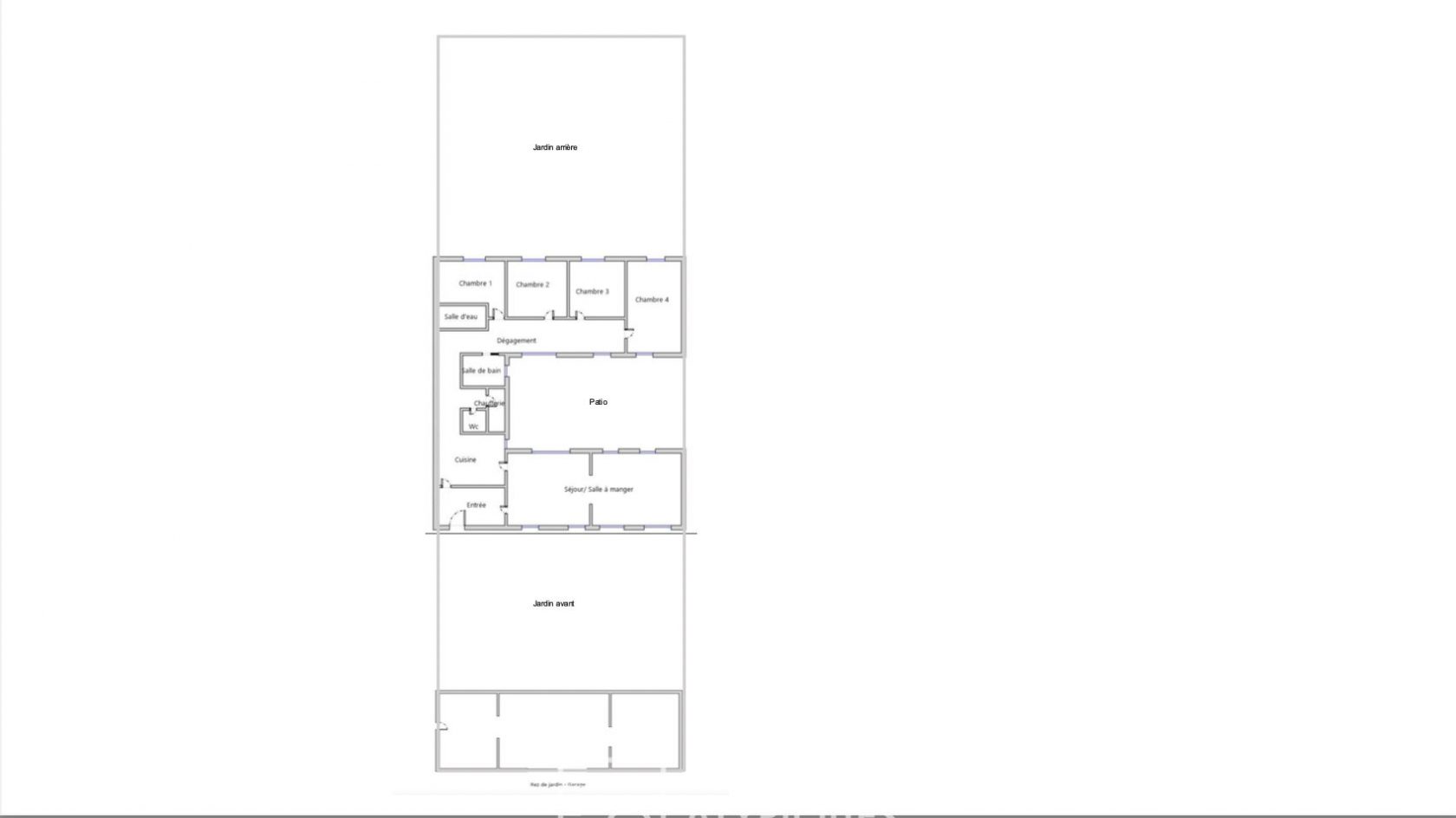
Signée par l’architecte Jean-Pierre Watel, elle fait partie du programme emblématique ?Village Expo’ de 1966, vitrine de l’architecture contemporaine de l’époque. Ses lignes horizontales affirmées, ses larges baies vitrées et son agencement autour d’un patio central illustrent parfaitement l’esprit novateur et fonctionnel des années 70.
Mêlant avec élégance brique et bois, cette maison intemporelle offre une distribution harmonieuse, avec ses espaces de vie et ses espaces nuit organisés de part et d’autre du patio, véritable coeur de la maison.
À l’avant, un espace verdoyant souligné par de grands arbres ; à l’arrière, un jardin plus intime accessible depuis la suite parentale. Au centre, un patio semi-ouvert, niché entre les ailes nuit et jour, offre un potentiel remarquable pour créer un espace détente ou installer un jacuzzi.
L’entrée mène à une cuisine indépendante aménagée et équipée, qui s’ouvre sur une généreuse pièce de vie traversante Est-Ouest de 40 m². Le salon et la salle à manger sont baignés de lumière grâce aux grandes baies vitrées, et réchauffés par une cheminée en brique, témoin du charme des années 70.
La partie nuit se compose d’une suite parentale avec dressing, salle d’eau et un accès direct au jardin arrière. Deux chambres jumelles de 9 m2 chacune, avec une orientation plein Est, disposent d’une vue agréable sur le jardin arrière permettant un repos certain. Une belle chambre de 17 m2, traversante Est/Ouest, avec un grand dressing bénéficie d’un accès privatif au patio central.
Une salle de bain carrelée à l’inspiration marocaine complète cet espace nuit indépendant.
La distribution en U garantit luminosité, intimité et fluidité de circulation, tout en créant une véritable osmose entre intérieur et extérieur.
Un espace atelier et un garage pouvant accueillir deux voitures viennent compléter l’ensemble.
Un bien rare, empreint de caractère, pour les amateurs d’architecture des années 70, d’espaces atypiques et de calme à deux pas des écoles et des transports.
Bien soumis au statut de la copropriété (361 ots) ne faisant l’objet d’aucune procédure en cours. Charges annuelles : 400€
CLASSE ÉNERGIE : E278/ CLASSE CLIMAT : E52
Montant moyen estimé des dépenses annuelles d’énergie pour un usage standard établi à partir des prix moyens des énergies indexés sur les années 2021, 2022 et 2023 : entre 3 340€ et 4 580€ par an.
Les informations sur les risques auxquels ce bien est exposé sont disponibles sur le site Géorisques : www.georisques.gouv.fr
Informations complémentaires
- 6 pièces
- 4 chambres
- 1 salle de bain
- 1 salle d'eau
- Surface du terrain : 484 m2
- 1 lots de copropriété
- Charges annuelles : 400 €
- Taxe foncière : 2 600 €
Diagnostics de performance énergétique
- A
- B
- C
- D
- 278kWh/m².an52*kg CO2/m².anE
- F
- G
- A
- B
- C
- D
- 52kg CO2/m².anE
- F
- G
Montant moyen estimé des dépenses annuelles d’énergie pour un usage standard, indexées aux années 2021, 2022, 2023 : entre 3340 € et 4580 € (abonnement compris)
Honoraires de l'agence
-
Les honoraires sont TTC à la charge du vendeur
Médiateur
Médiation Franchise-Consommateurs
29 Boulevard de Courcelles 75008 Paris
Simulez votre financement
Les informations sur les risques auxquels ce bien est exposé sont disponibles sur le site Géorisques : www.georisques.gouv.fr
