Charming apartment complex with top-floor balconies
At the top of a historic building with an elevator, this property occupies the 7th floor and offers a panoramic view of Paris. This rare property boasts a unique and inspiring layout, perfectly blending heritage investment with a lifestyle project.
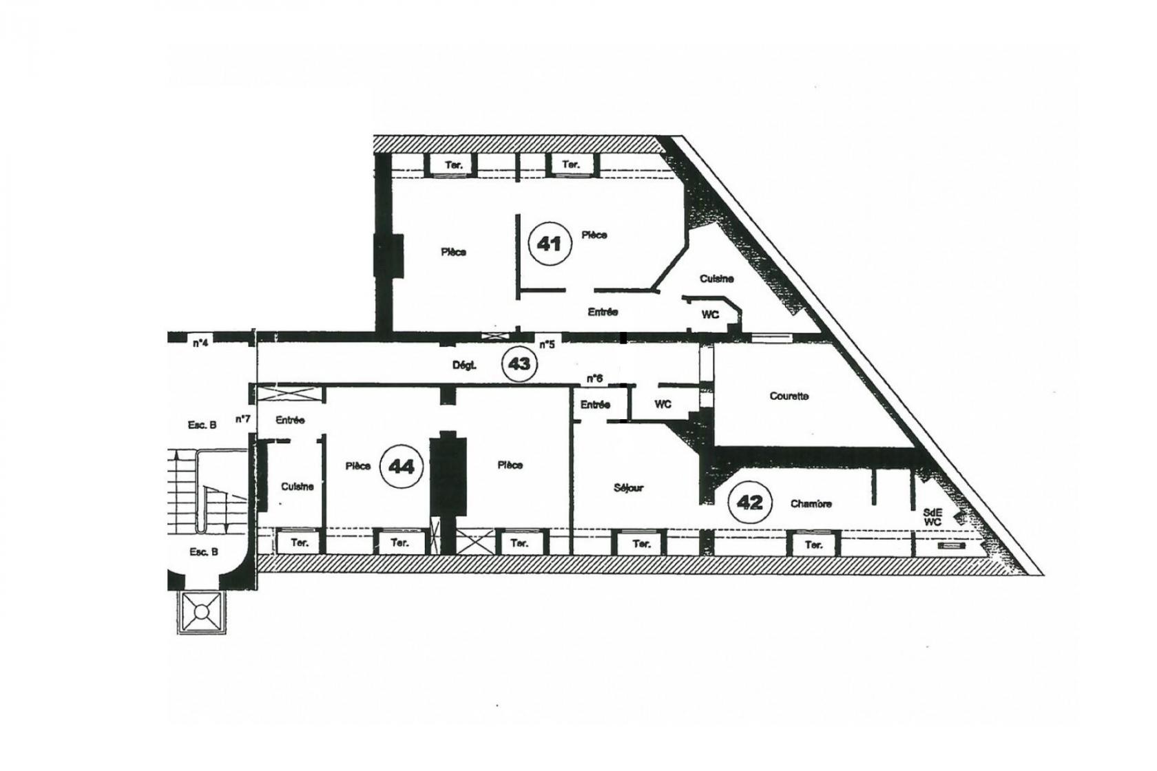
Behind a private door, a corridor belonging to the building leads to three independent two-room apartments, each with its own entrance and small balcony. This distinctive, almost intimate configuration provides the feeling of a completely private floor.
With its north-south orientation, the apartments benefit from remarkable natural light throughout the day. The unobstructed views encompass the rooftops of the capital and its iconic monuments, including the Eiffel Tower and the dome of Les Invalides, creating a spectacular and ever-changing panorama.
Inside, the charm of the original features blends seamlessly with a warm atmosphere: original parquet flooring, high ceilings, and exposed beams in some units. Two apartments have been completely renovated, and the attic space has been purchased for two of them.
The third apartment is occupied under the 1948 law by an 85-year-old woman. The other two are currently rented furnished, with leases expiring in September 2026 and February 2027, respectively.
The total monthly rental income is €3,155, including charges.
The property is being sold with five cellars and a cellar corridor. Bicycle parking is available in the courtyard.
Energy performance certificates show ratings of E, F, and G, depending on the unit.
This unique and bright property, suspended between sky and city, will appeal to both investors seeking a distinctive asset and those interested in ambitious architectural projects, with the potential to eventually combine these spaces to create a large family apartment under the Parisian rooftops.
Metro: Père Lachaise
Additional information
- 6 rooms
- 3 bedrooms
- 3 shower rooms
- Floor : 7
- 7 floors in the building
- 102 co-ownership lots
- Annual co-ownership fees : 5 772 €
- Property tax : 1 984 €
- Proceeding : Non
Energy Performance Certificate
- A
- B
- C
- D
- E
- 423kWh/m².year16*kg CO2/m².yearF
- G
- A
- B
- 16kg CO2/m².yearC
- D
- E
- F
- G
Agency fees
-
The fees include VAT and are payable by the vendor
Mediator
Médiation Franchise-Consommateurs
29 Boulevard de Courcelles 75008 Paris
Simulez votre financement
Information on the risks to which this property is exposed is available on the Geohazards website : www.georisques.gouv.fr
