Appartement en dernier étage aux prestations d’exception
Idéalement situé sur le canal de Rompsay, à quelques minutes du centre-ville, cet appartement en duplex livrable au 4ème trimestre 2026 s’inscrit dans le cadre d’une construction unique tant par sa situation géographique que par sa prouesse énergétique.
Ce sublime appartement en duplex, niché au dernier étage d’un immeuble neuf, offre une expérience de vie inédite, où le ciel et la lumière sont les maîtres mots. Profitez d’une vue traversante et dégagée, véritable tableau vivant qui évolue au fil des heures.
Cet appartement, alliance parfaite de modernité et de confort, vous permet de bénéficier de frais de notaire réduits.
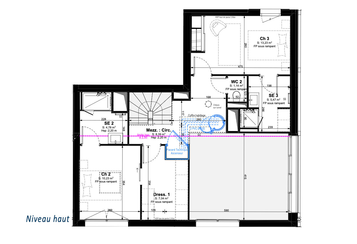
Dès l’entrée, la pièce de vie de près de 70 m2 enveloppe de son volume généreux et de sa luminosité. Un espace pensé pour la convivialité, les réceptions ou simplement le plaisir d’être chez soi.
L’agencement intelligent se prolonge avec trois chambres proposant des cocons de tranquillité pour chacun.
Mais le véritable joyau de ce duplex réside dans ses extérieurs. Laissez-vous séduire par deux terrasses, dont l’une, d’une superficie de plus de 70 m2, est une véritable invitation à la rêverie. Un cadre idéal pour des petits-déjeuners face à l’horizon, des soirées entre amis sous les étoiles, ou l’aménagement d’un jardin suspendu dans cet espace de détente illimité.
Pour parfaire ce cadre de vie idyllique, deux places de parking privatives viennent compléter ce bien rare, garantissant un confort au quotidien.
Ce duplex n’est pas qu’un appartement, c’est une promesse : celle d’un quotidien rythmé par la beauté, le confort et l’exclusivité.
L’ensemble des aménagements intérieurs et extérieurs très haut de gamme permettra une qualité de vie au quotidien d’exception.
A noter, les choix de personnalisation et/ou les possibilités de modifications, envisageables sous réserve de l’avancement du chantier.
Un bien parfait pour une résidence principale, ou un investissement locatif.
Dans le cadre de ce programme neuf, les frais de notaire sont réduits à 3%.
Acteur local engagé, notre promoteur partenaire est précurseur dans son domaine, reconnu dans la conception et la construction de quartiers de qualité, privilégiant une sélection pointue des matériaux et leur faible empreinte environnementale.
Projet de construction en cours : DPE non fourni.
Informations complémentaires
- 4 pièces
- 3 chambres
- 3 salles d'eau
- Étage : 4
- 4 étages dans l'immeuble
- Stationnement : 2 places
Diagnostics de performance énergétique
Honoraires de l'agence
-
Les honoraires sont TTC à la charge du vendeur
Médiateur
Médiation Franchise-Consommateurs
29 Boulevard de Courcelles 75008 Paris
Simulez votre financement
Les informations sur les risques auxquels ce bien est exposé sont disponibles sur le site Géorisques : www.georisques.gouv.fr
