Appartement niché au coeur d’un château
Situé sur la commune de Villeneuve-les-Bouloc, au cœur d’un environnement privilégié, cet appartement d’exception de 173,31m² Carrez prend place au sein du prestigieux Château de Villefranche.
Une opportunité rare d’acquérir une part d’histoire dans une copropriété de caractère aux allures de maison de famille.
Dès l’entrée, la magie de ce lieu chargé d’histoire opère.
Baigné de lumière, l’appartement déploie des volumes généreux où les deux pièces principales de vie ont conservé leurs décors d’origine : tomettes anciennes, parquets massifs, cheminées en marbre et sublimes papiers peints panoramiques des années 1810.
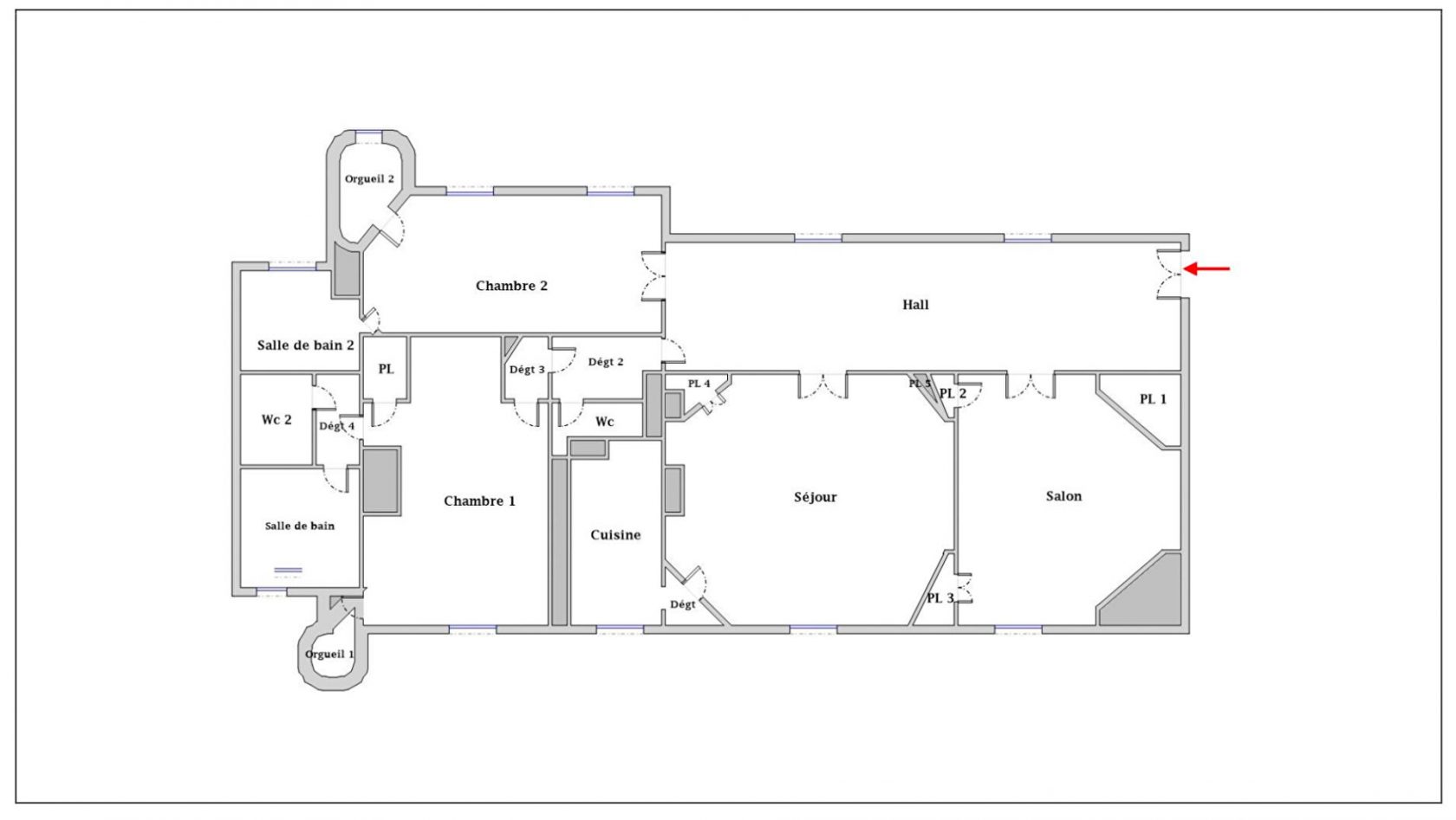
L’espace nuit a été pensé pour le confort et l’intimité, offrant deux grandes suites disposant chacune de leur salle de bains privative.
Atout charme de ces deux suites, ses espaces insolites nichés au coeur des tourelles: des recoins hors du temps qui n’attendent qu’un aménagement créatif (dressing, bureau secret, boudoir, coin lecture) pour révéler tout leur potentiel.
Au-delà de ses prestations intérieures, ce bien permet de profiter d’un cadre de vie bucolique avec un parc arboré de plus de 11 hectares aux arbres matures et la présence de dépendances historiques (ferme, bergerie).
Idéalement situé, il conjugue la tranquillité de la campagne toulousaine avec la proximité immédiate des écoles et commerces.
Laissez-vous séduire par cet immobilier de prestige qui n’attend que votre vision.
Écoles, commerces et accès Autoroute : 3 minutes en voiture
Bien soumis au statut de la copropriété de 30 lots sur dont 30 lots d’Habitation et sa place de parking/ charges mensuelles de copropriété : 520€/mois. Copropriété sans procédure en cours.
Montant moyen estimé des dépenses annuelles d’énergie pour un usage standard, établi à partir des prix de l’énergie de l’année 2021 comprises en 3240€ et 4430€.
Certains visuels de cette annonce sont une proposition d’aménagement 3D. Images non contractuelles.
Les informations sur les risques auxquels ce bien est exposé sont disponibles sur le site Géorisques http://www.georisques.gouv.fr
Informations complémentaires
- 5 pièces
- 2 chambres
- 2 salles de bain
- Étage : 1
- 1 étage dans l'immeuble
- Stationnement : 2 places
- 30 lots de copropriété
- Charges annuelles : 5 926 €
- Taxe foncière : 1 596 €
Diagnostics de performance énergétique
- A
- B
- C
- 233kWh/m².an40*kg CO2/m².anD
- E
- F
- G
- A
- B
- C
- 40kg CO2/m².anD
- E
- F
- G
Montant moyen estimé des dépenses annuelles d’énergie pour un usage standard, indexées aux années 2021, 2022, 2023 : entre 3240 € et 4430 € (abonnement compris)
Honoraires de l'agence
-
Les honoraires sont TTC à la charge du vendeur
Médiateur
Médiation Franchise-Consommateurs
29 Boulevard de Courcelles 75008 Paris
Simulez votre financement
Les informations sur les risques auxquels ce bien est exposé sont disponibles sur le site Géorisques : www.georisques.gouv.fr
