Fabuleux duplex en dernier étage avec vue sur le mont Caly
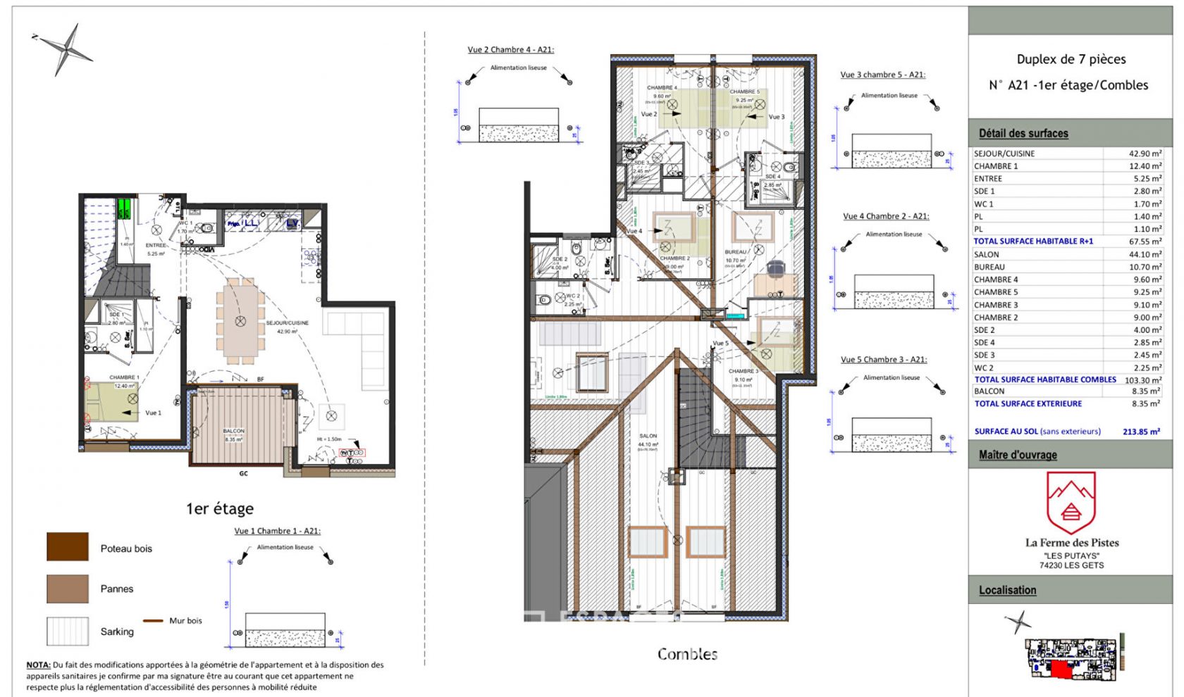
Situé au calme à seulement cinq minutes du centre des Gets et avec accès direct aux remontées mécaniques, ce fabuleux duplex aux prestations haut de gamme sera niché sur les deux derniers étages de cette copropriété de standing . Ce bien proposera une surface de 170.85 m² carrez pour 213.85 m² au sol et offrira une belle terrasse à la vue dégagée.
Le premier niveau desservira une entrée, un salon – séjour qui accueillera une cuisine ouverte entièrement aménagée et équipée donnant sur la salle à manger. Les pièces de vie profiteront d’une belle terrasse d’environ 8 m² . Cet étage disposera d’une belle suite avec salle d’eau privative.
Le deuxième niveau sous combles proposera quant à lui un salon chaleureux avec cheminée de plus de 79 m² au sol, idéal pour des moments de convivialité. Pour suivre : une chambre avec salle d’eau séparée, un espace bureau en dégagement, deux suites avec salles d’eau privatives.
Deux casiers à skis, un garage box et deux places de parking en sous-sol viendront compléter les belles prestations de ce bien.
Il est possible d’acquérir en sus, un garage supplémentaire.
Vente neuf en VEFA, bien non soumis à l’affichage du DPE.
Les performances thermiques du projet permettront d’atteindre le niveau RE2020 réglementaire.
Livraison prévue pour Fin 2024.
Bien soumis au statut de la copropriété – 31 lots d’habitations.
Faibles charges de copropriété.
Les informations sur les risques auxquels ce bien est exposé sont disponibles sur le site Géorisques : www.georisques.gouv.fr
Dossier sur demande.
Informations complémentaires
- 7 pièces
- 5 chambres
- 4 salles d'eau
- Étage : 1
- 2 étages dans l'immeuble
- Stationnement : 2 places
- 31 lots de copropriété
- Procédures en cours : Non
Diagnostics de performance énergétique
Honoraires de l'agence
-
Les honoraires sont TTC à la charge du vendeur
Médiateur
Médiation Franchise-Consommateurs
29 Boulevard de Courcelles 75008 Paris
Les informations sur les risques auxquels ce bien est exposé sont disponibles sur le site Géorisques : www.georisques.gouv.fr
