Un manifeste esthétique sous les toits à la Place des Vosges
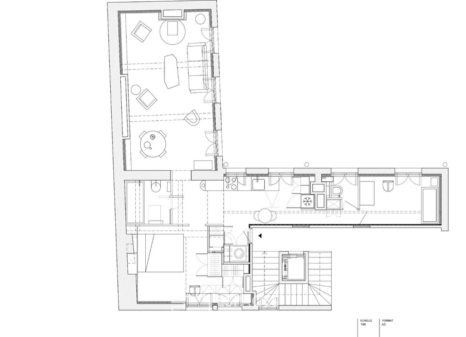
À deux pas de la mythique Place des Vosges, niché au 4ème et dernier étage avec ascenseur d’un immeuble de caractère, cet appartement de 68m² au sol (63,11 m² Loi Carrez) est le fruit d’une rénovation d’architecte radicale et inspirée. Ici, le volume se fait sculpteur et les matières racontent une histoire.
Dès l’entrée, le regard s’envole vers un toit cathédrale culminant à 4,50 mètres. Le séjour, véritable pièce maîtresse avec ses 3 fenêtres exposition Est, réussit la prouesse de marier la rusticité des poutres d’origine à un habillage intégral en bois, créant une atmosphère de cabane urbaine ultra-sophistiquée. Un poêle ancien en fonte, fonctionnel, ancre l’espace dans une chaleur authentique, tandis que de grands ventilateurs de bois massif viennent souligner l’esprit loft, à la fois élégant et décontracté.
Le design se cache dans chaque détail, avec un fil conducteur graphique jouant sur le motif damier et les sphères métalliques qui rythment les circulations.
La cuisine, bloc monolithique en inox brossé, s’oppose avec élégance à la douceur de la salle de bain. Cette dernière, pensée comme une antichambre précieuse, est parée d’un marbre rose veiné, accueillant une vasque Putman et baignoire en inox perforé sur mesure, véritable pièce de collection.
Le coin nuit se décline en deux chambres feutrées, dont une nichée sous les pentes, où les ouvertures sur les toits de Paris invitent à la sérénité.
Le confort est omniprésent mais invisible : des enceintes haut de gamme sont encastrées dans chaque pièce pour une expérience sensorielle totale.
Ce lieu de vie, calme et traversant, est complété par deux caves et un débarras. Pour les esthètes, la possibilité d’acquérir en sus l’intégralité du mobilier et de la décoration permet d’emménager dans cette oeuvre d’art clé en main.
Une adresse rare au coeur battant du Marais.
Métro : Chemin Vert
Informations complémentaires
- 3 pièces
- 2 chambres
- 1 salle de bain
- Étage : 4
- 4 étages dans l'immeuble
- 45 lots de copropriété
- Charges annuelles : 1 991 €
- Taxe foncière : 1 207 €
- Procédures en cours : Non
Diagnostics de performance énergétique
- A
- B
- 166kWh/m².an6*kg CO2/m².anC
- D
- E
- F
- G
- A
- 6kg CO2/m².anB
- C
- D
- E
- F
- G
Montant moyen estimé des dépenses annuelles d’énergie pour un usage standard, indexées aux années 2021, 2022, 2023 : entre 1020 € et 1400 € (abonnement compris)
Honoraires de l'agence
-
Les honoraires sont TTC à la charge du vendeur
Médiateur
Médiation Franchise-Consommateurs
29 Boulevard de Courcelles 75008 Paris
Simulez votre financement
Les informations sur les risques auxquels ce bien est exposé sont disponibles sur le site Géorisques : www.georisques.gouv.fr
