Ancien atelier de confection transformé en loft d’architecte – Marché Cadet
Situé dans le 9ème arrondissement de Paris, à quelques pas du Marché Cadet, cet appartement de type loft de 63,48 m² Carrez est issu de la transformation d’un ancien atelier de confection par un architecte.
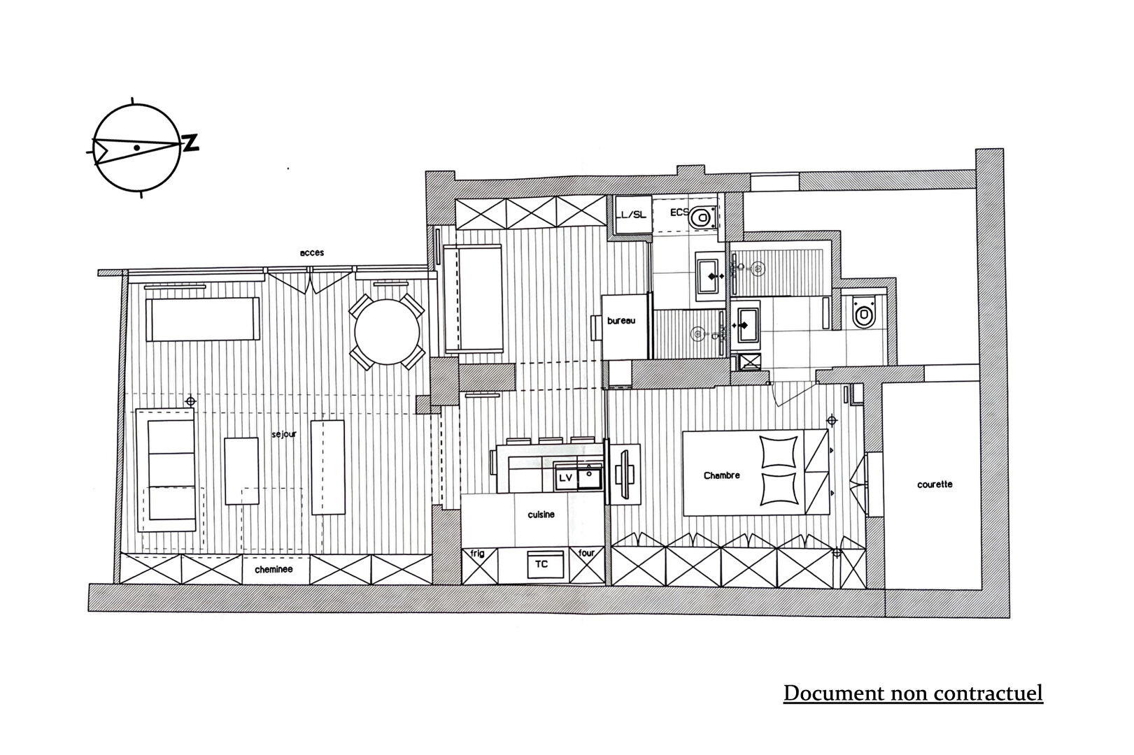
L’entrée s’ouvre sur un vaste espace de vie totalisant 42 m². Il comprend trois zones distinctes :
– Le salon présente une belle hauteur sous plafond ainsi qu’une agréable lumière naturelle grâce aux nombreuses verrières. Une bibliothèque sur mesure et une cheminée à l’éthanol agrémentent l’ensemble.
– La cuisine aménagée et équipée, prolongée par son bar, accentue le caractère convivial du lieu.
– Le troisième espace accueille aujourd’hui un petit salon avec canapé lit et placard sur mesure, donnant accès à une salle d’eau avec toilettes – idéal pour recevoir.
Enfin, une suite de près de 18 m² comprend une généreuse chambre équipée de placards-dressing sur mesure et d’une salle d’eau avec douche à l’italienne et toilettes.
La verticalité des volumes, accentuée par plus de trois mètres de hauteur sous plafond, associée à la façade vitrée et à la verrière zénithale, réaffirme l’esprit atelier et met en valeur le caractère unique de ce lieu au charme singulier.
Le bien se distingue par l’optimisation des espaces et les nombreux rangements intégrés, bien pensés par l’architecte.
Une cave vient compléter ce bien, soumis au régime de la copropriété et disposant d’un local à vélos.
Métro Cadet ou Grands Boulevards (Lignes 7, 8 et 9)
Informations complémentaires
- 3 pièces
- 1 chambre
- 2 salles d'eau
- 118 lots de copropriété
- Charges annuelles : 2 262 €
- Taxe foncière : 1 210 €
- Procédures en cours : Non
Diagnostics de performance énergétique
- A
- B
- C
- D
- E
- 342kWh/m².an11*kg CO2/m².anF
- G
- A
- B
- 11kg CO2/m².anC
- D
- E
- F
- G
Montant moyen estimé des dépenses annuelles d’énergie pour un usage standard, indexées aux années 2021, 2022, 2023 : entre 1660 € et 2290 € (abonnement compris)
Honoraires de l'agence
-
Les honoraires sont TTC à la charge du vendeur
Médiateur
Médiation Franchise-Consommateurs
29 Boulevard de Courcelles 75008 Paris
Les informations sur les risques auxquels ce bien est exposé sont disponibles sur le site Géorisques : www.georisques.gouv.fr
