Duplex avec vaste souplex modulables aux Epinettes
Au fond d’une cour végétalisée, entre la Cité des Fleurs et le Square des Epinettes, se niche ce duplex avec vaste souplex totalisant 190,51 m2 (53,45 m2 Carrez).
Il se distingue par son caractère résolument atypique et son atmosphère sereine.
Ce lieu de vie se déploie sur trois niveaux conçus pour offrir un bon équilibre entre intimité et espace.
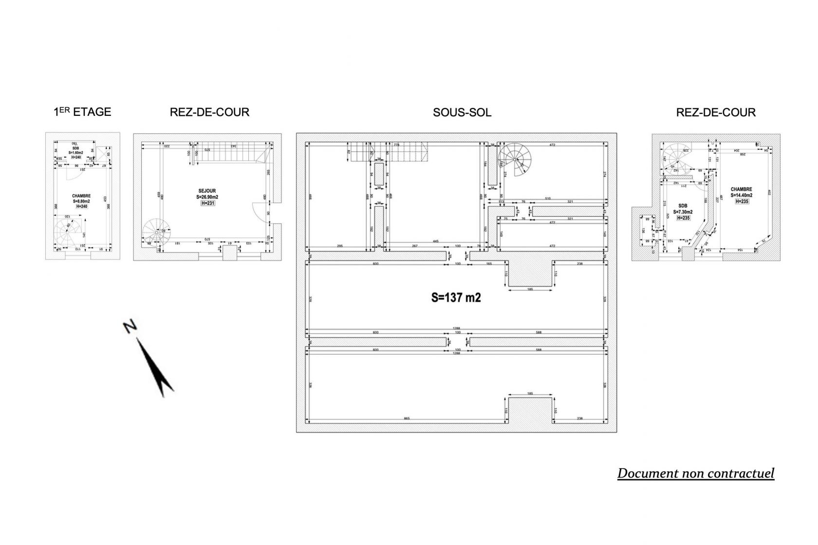
L’entrée s’ouvre sur une pièce de vie de 23,5 m2 aménagée en salon avec cuisine ouverte. La pièce est dotée de deux grandes fenêtres donnant sur l’agréable cour.
Un escalier d’inspiration Roger Tallon conduit à l’étage supérieur composé d’une pièce de 8,5 m2 disposant d’un cabinet de toilettes.
Le sous-sol, accessible depuis le salon, véritable atout de ce bien, s’étend sur 135 m2 et ouvre de multiples possibilités d’aménagements, que ce soit pour un espace de loisirs, un bureau, ou encore un atelier créatif, destiné à la musique, aux amateurs de son et d’image.
Ce vaste volume modulable permet d’adapter le lieu à des projets de vie variés, tout en préservant l’intimité de chacun.
Le sous-sol mène élégamment à une autre partie en rez-de-cour, où se trouvent une chambre de 13 m2 ainsi qu’une salle de d’eau dotée d’une douche à l’italienne.
En quête d’un lieu de vie unique, ce bien soumis au régime de copropriété saura séduire les amoureux d’espaces rares et inspirants, offrant une parenthèse de tranquillité et de caractère.
Possibilité professions libérales.
Métro Brochant ou Guy Moquet (ligne 13)
Informations complémentaires
- 8 pièces
- 2 chambres
- 2 salles d'eau
- 4 étages dans l'immeuble
- 56 lots de copropriété
- Charges annuelles : 3 228 €
- Taxe foncière : 1 200 €
- Procédures en cours : Non
Diagnostics de performance énergétique
- A
- B
- C
- 201kWh/m².an7*kg CO2/m².anD
- E
- F
- G
- A
- 7kg CO2/m².anB
- C
- D
- E
- F
- G
Montant moyen estimé des dépenses annuelles d’énergie pour un usage standard, établi à partir des prix de l’énergie de l’année 2021 : entre 1020 € et 1410 €
Honoraires de l'agence
-
Les honoraires sont TTC à la charge du vendeur
Médiateur
Médiation Franchise-Consommateurs
29 Boulevard de Courcelles 75008 Paris
Simulez votre financement
Les informations sur les risques auxquels ce bien est exposé sont disponibles sur le site Géorisques : www.georisques.gouv.fr
