Loft d’architecte avec verrière
Situé à la frontière des 10ᵉ et 18ᵉ arrondissements, ce loft d’architecte de 116,33 m² Carrez prend place dans un ancien entrepôt entièrement réhabilité.
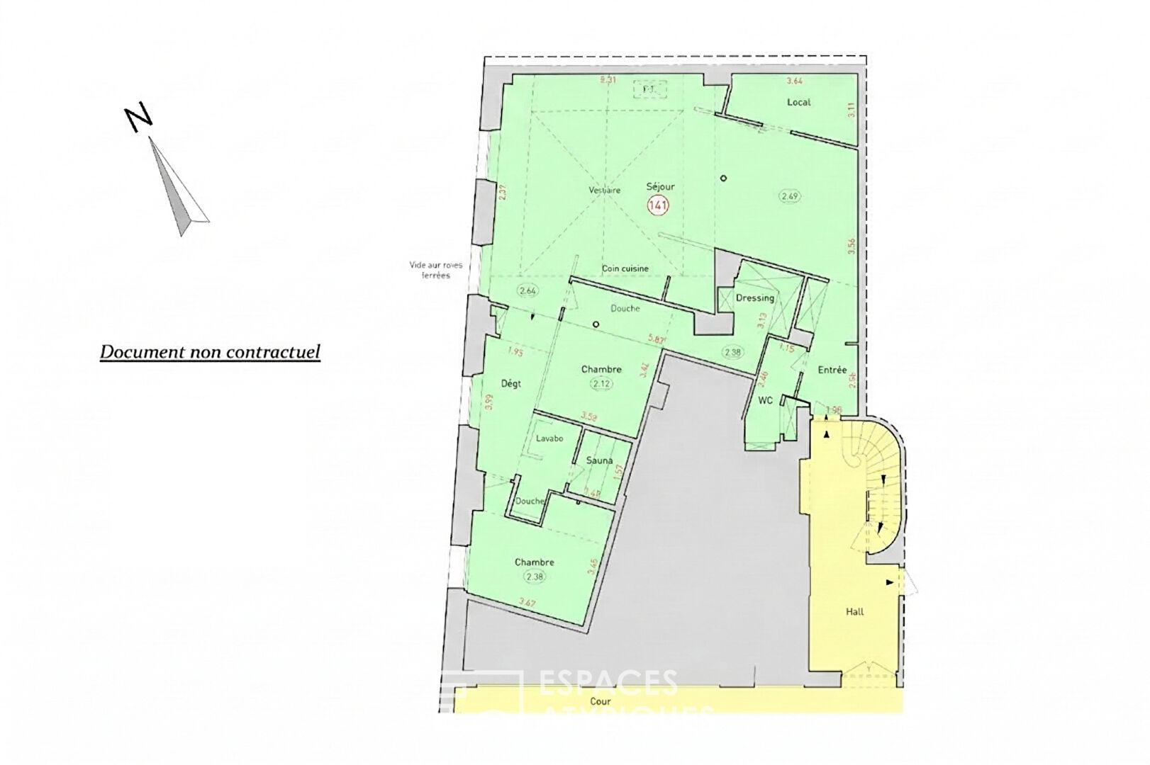
Il se compose d’une entrée avec toilettes et placard d’entrée conduisant à une grande pièce de vie de 57 m2 avec une belle cuisine ouverte dotée d’un ilot central maçonné et inondée de lumière grâce à sa verrière.
Cette pièce dessert un petit salon TV de 6 m2.
La partie nuit se compose d’une grande chambre parentale avec douche à l’italienne et dressing, suivie d’une salle de douche avec un sauna ainsi qu’une seconde chambre.
La charpente métallique, la cuisine en béton pleine masse, le sol chauffant recouvert d’une résine donne à ce lieu une âme industrielle et contemporaine.
Bien soumis au statut de la copropriété.
Métro La Chapelle ou Stalingrad (Lignes 2, 5 et 7)
Informations complémentaires
- 4 pièces
- 2 chambres
- 2 salles d'eau
- 4 étages dans l'immeuble
- 125 lots de copropriété
- Charges annuelles : 2 900 €
- Taxe foncière : 1 814 €
- Procédures en cours : Non
Diagnostics de performance énergétique
- A
- B
- C
- 228kWh/m².an49*kg CO2/m².anD
- E
- F
- G
- A
- B
- C
- 49kg CO2/m².anD
- E
- F
- G
Montant moyen estimé des dépenses annuelles d’énergie pour un usage standard, indexées aux années 2021, 2022, 2023 : entre 2340 € et 3210 € (abonnement compris)
Honoraires de l'agence
-
Les honoraires sont TTC à la charge du vendeur
Médiateur
Médiation Franchise-Consommateurs
29 Boulevard de Courcelles 75008 Paris
Simulez votre financement
Les informations sur les risques auxquels ce bien est exposé sont disponibles sur le site Géorisques : www.georisques.gouv.fr
