Appartement traversant avec terrasse
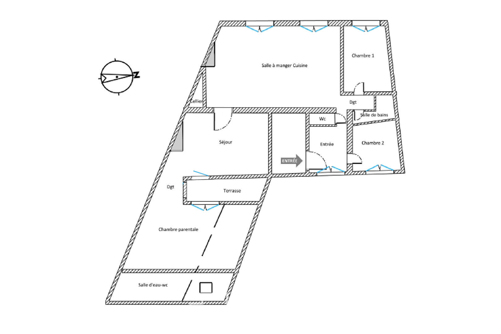
Rue des Haies à proximité de la Place de la Réunion, dans un immeuble datant du milieu du XIXème siècle, un appartement de 103 m² (90,08 m² Carrez) situé au 2ème étage bénéficie d’une terrasse accessible depuis le salon.
L’entrée dessert un espace cuisine salle à manger de 32 m² sur rue incluant un cellier, prolongé par un séjour de 16 m² équipé d’une cheminée et ouvrant sur une terrasse sur cour de 5,25 m².
Un dégagement mène à une chambre parentale mansardée disposant de nombreux rangements sur mesure et ouvrant sur la terrasse, jouxtant une salle de douche avec wc également mansardée et éclairée par une fenêtre de toit.
Deux autres chambres, l’une sur rue l’autre sur cour, se partagent une salle de bain.
Un wc invités complète ce bien.
Cet appartement familial traversant jouissant de calme et de luminosité grâce à ses nombreux ouvrants a bénéficié d’une rénovation récente.
Ce bien soumis au statut de la copropriété bénéficie de 2 caves.
La cour commune est équipée d’emplacements permettant de stationner des vélos.
Possibilité de louer un parking à proximité.
Métro : Buzenval
Informations complémentaires
- 5 pièces
- 3 chambres
- 1 salle de bain
- 1 salle d'eau
- Étage : 2
- 3 étages dans l'immeuble
- Surface du terrain : 5.25 m2
- 41 lots de copropriété
- Charges annuelles : 3 598 €
- Taxe foncière : 1 210 €
- Procédures en cours : Non
Diagnostics de performance énergétique
- A
- B
- C
- D
- 329kWh/m².an10*kg CO2/m².anE
- F
- G
- A
- 10kg CO2/m².anB
- C
- D
- E
- F
- G
Montant moyen estimé des dépenses annuelles d’énergie pour un usage standard, indexées aux années 2021, 2022, 2023 : entre 2230 € et 3090 € (abonnement compris)
Honoraires de l'agence
-
Les honoraires sont TTC à la charge du vendeur
Médiateur
Médiation Franchise-Consommateurs
29 Boulevard de Courcelles 75008 Paris
Les informations sur les risques auxquels ce bien est exposé sont disponibles sur le site Géorisques : www.georisques.gouv.fr
